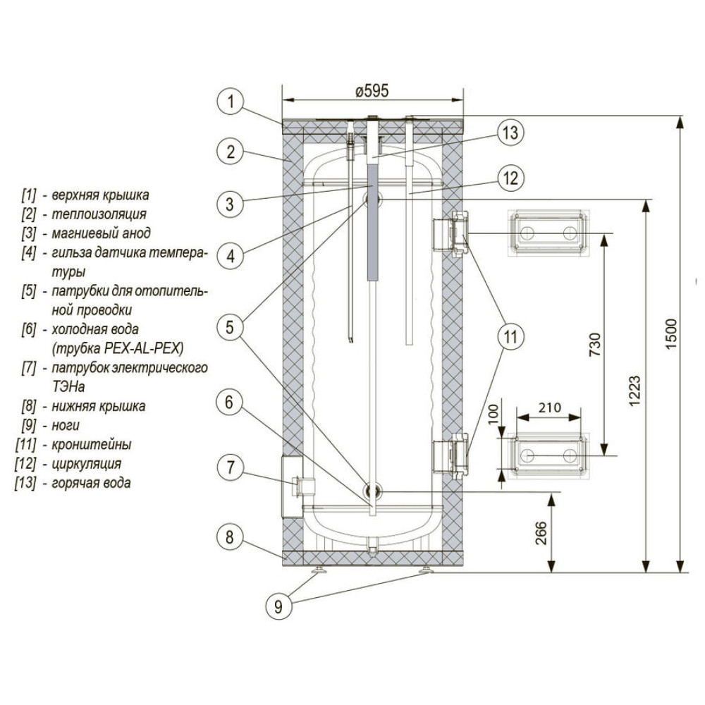
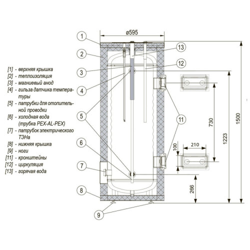
Напольный водонагреватель косвенного нагрева Kospel SP 180- это поколенине совершенно новых бойлеров от польской компании. Основной и главной особенностью бака Kospel SP 180 является его теплообменник с конструкцией "бак в баке" благодоря которому удалось получить максимальную поверхность нагрева а вследствии этого и мощность самого бака. Мощность водонагревателя SP 180 больше на 30% по сравнению с аналогами имеющими обычный теплообменник. Наличие конструкции "бак в баке" позволяет производить универсальный монтаж в горизонтальной плоскости и вертикальной а прилагаемые в комплекте крепежи дают возможность подвесить водонагреватель на стену.
Технические особенности и характеристики:
Бойлер Kospel SP 180 Termo в наличии в наших магазинах с гарантией производителя !!!!
Характеристики




