Коллектор нержавеющий модульный Gidruss MKSS-600-3х32 до 600 кВт ДУ80 3 контура
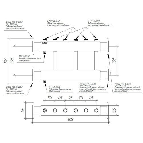
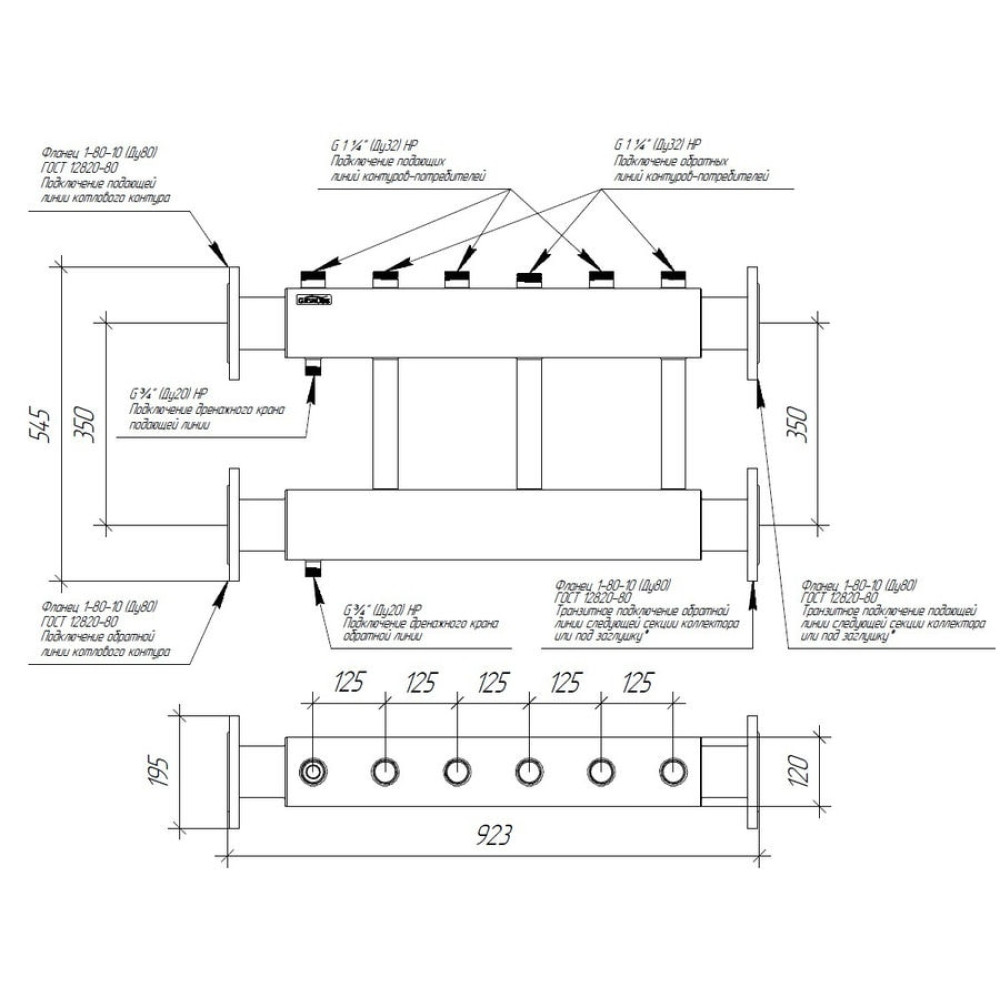
Коллектор фланцевый Ду80 предназначен для распределения теплоносителя по контурам или его сбора в каскад в котельных и ИТП до 600 кВт в условиях повышенной коррозии (жесткой воды, высокой влажности, наличием кислорода в системе из-за полипропиленовых труб).
Максимальная подача, м3/ч - 25.7
Максимальная отапливаемая площадь, м² 5000
Магистральное присоединение Фланец Ду-80
Подключение потребителей - G 1 1/4″ (НР)
Количество контуров - 3
Мощность максимальная, кВт 600
Вылет от стены, мм любой
Межосевое расстояние, мм 125/350
Доп. присоединение - G 3/4″ (НР)
Характеристики






