Коллектор нержавеющий модульный Gidruss MKSS-400-3х32 до 400 кВт ДУ65 3 контура
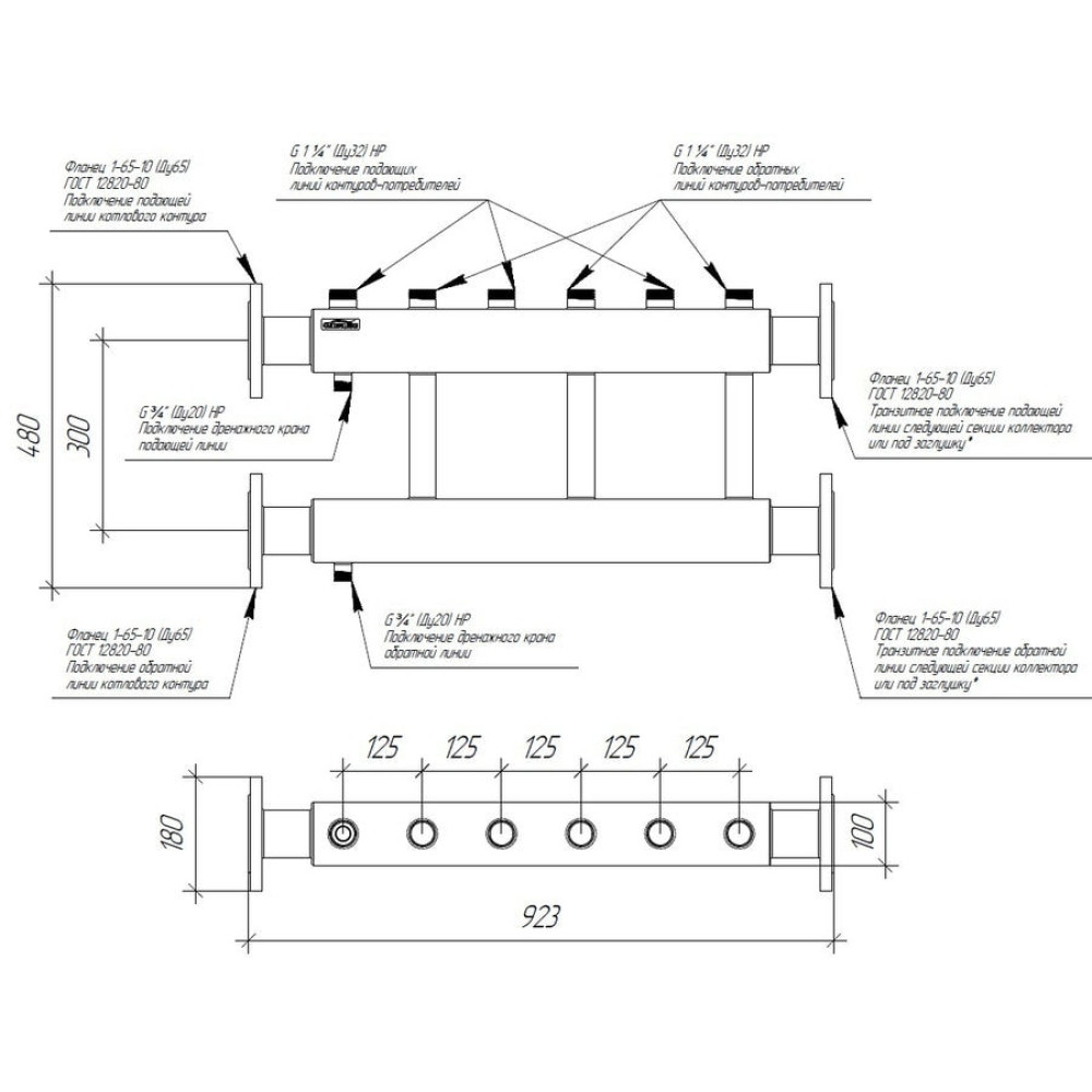
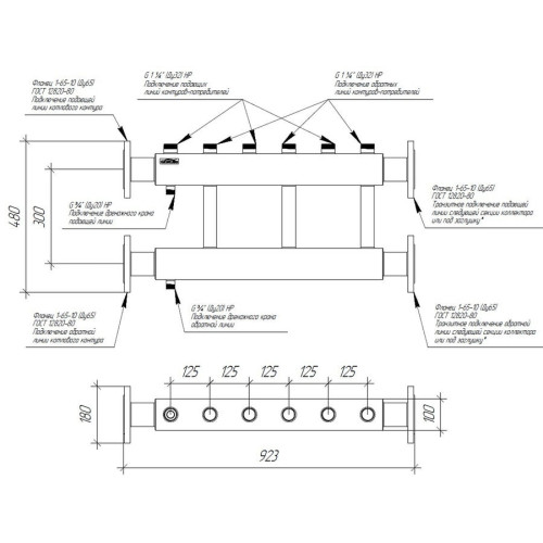
Коллектор фланцевый Ду65 предназначен для распределения теплоносителя по контурам или его сбора в каскад в котельных и ИТП до 400 кВт в условиях повышенной коррозии (жесткой воды, высокой влажности, наличием кислорода в системе из-за полипропиленовых труб).
Максимальная подача, м3/ч - 17.1
Максимальная отапливаемая площадь, м² 3000
Магистральное присоединение Фланец Ду-65
Подключение потребителей - G 2″ (НР)
Количество контуров - 3
Мощность максимальная, кВт 400
Вылет от стены, мм любой
Межосевое расстояние, мм 250/300
Доп. присоединение - G 3/4″ (НР)
Характеристики






