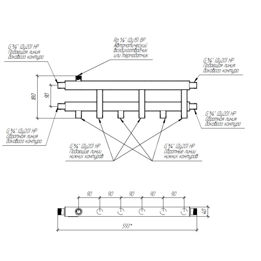
Коллектор нержавеющий модульный Gidruss MKSS-40-4D до 40 кВт 3/4" 4 контура
Модульный коллектор отопления предназначен для обвязки котельных в одноэтажных частных домах до 250 м² с настенным котлом до 40 кВт.
Максимальная подача, м3/ч - 1.7
Максимальная отапливаемая площадь, м² 250
Магистральное присоединение G 3/4″ (НР)
Подключение потребителей - G 3/4″ (НР)
Количество контуров - 4
Мощность максимальная, кВт 40
Вылет от стены, мм 50-65
Межосевое расстояние, мм 90
Доп. присоединение - 1/2" ВР
Характеристики




