Коллектор нержавеющий модульный Gidruss MKSS-100-4DU до 100 кВт 1 1/4" 5 контуров
Модульный коллектор отопления предназначен для обвязки котельных в одноэтажных частных домах до 800 м² с настенным котлом до 100 кВт.
Максимальная подача, м3/ч - 4.3
Максимальная отапливаемая площадь, м² 800
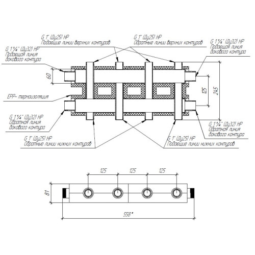
Магистральное присоединение G 1 1/4″ (НР)
Подключение потребителей - G 1″ (НР)
Количество контуров - 5
Мощность максимальная, кВт 100
Вылет от стены, мм 75-105
Межосевое расстояние, мм 125
Доп. присоединение - 1/2" ВР
Характеристики




