Коллектор модульный Gidruss MK-400-2х50 до 400 кВт ДУ 65 2 контура
Модульный коллектор предназначен для распределения теплоносителя по контурам или его сбора в каскад для вывода на гидравлический разделитель.
Максимальная подача, м3/ч - 17.1
Максимальная отапливаемая площадь, м² 3000
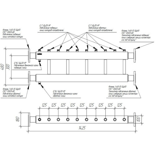
Магистральное присоединение - Фланец ДУ 65
Подключение потребителей - G 2″ (НР)
Количество контуров - 2
Мощность максимальная, кВт 400
Вылет от стены, мм - любой
Межосевое расстояние, мм 250/300
Доп. присоединение - 3/4" ВР
Характеристики






