Коллектор модульный Gidruss MK-2000-3х65F до 2000 кВт ДУ 150 3 контура
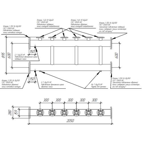
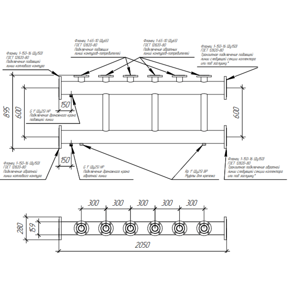
Модульный коллектор предназначен для распределения теплоносителя по контурам или его сбора в каскад для вывода на гидравлический разделитель.
Максимальная подача, м3/ч - 85.7
Максимальная отапливаемая площадь, м² 30000
Магистральное присоединение - Фланец ДУ 150
Подключение потребителей - Фланец Ду-65
Количество контуров - 3
Мощность максимальная, кВт 2000
Вылет от стены, мм - любой
Межосевое расстояние, мм 250/600
Характеристики






