Печь-камин Nordpeis Glasgow 5 кВт
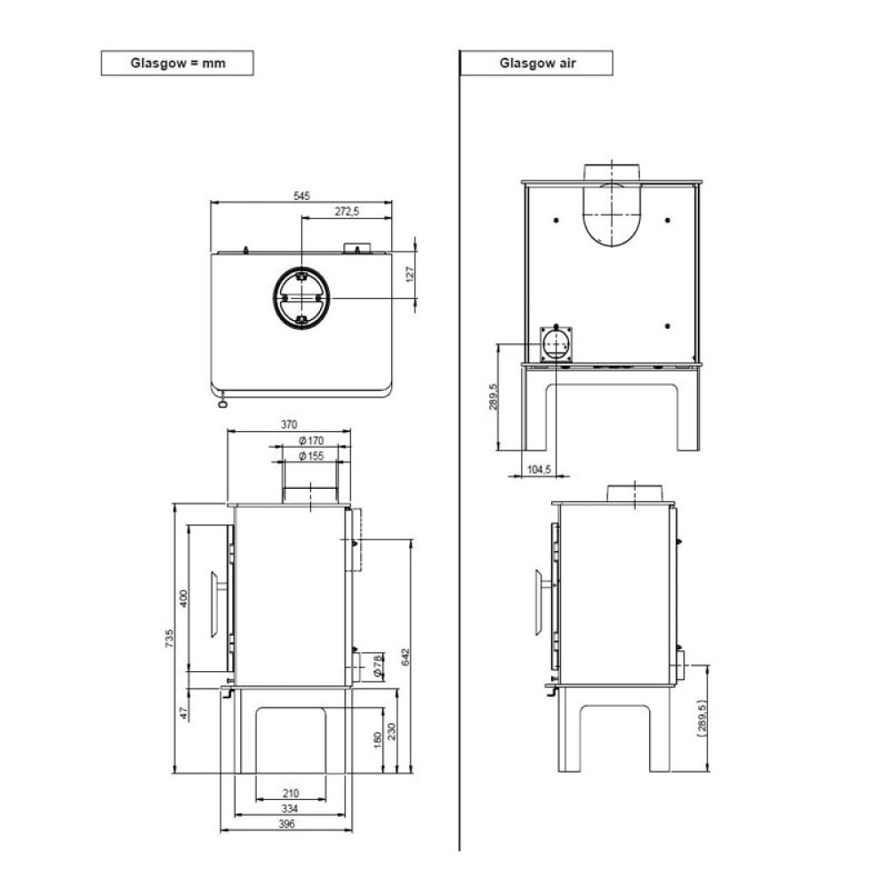
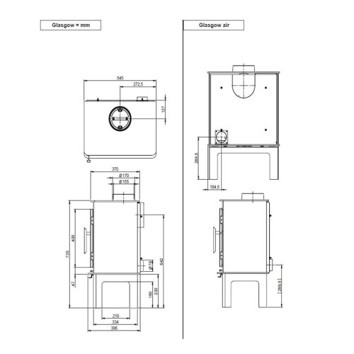
Фирма Nordpeis была основана более 30 лет назад в 1984 году. Рецепт ее успеха звучит так: качество, инновационные технологии плюс соответствующий дизайн. Качество на первом месте. Обзор огня Дверца печи камина декорирована стеклом. Такие стекла делаются всего в 2 странах: Германии и Японии. Оно выдерживает температуру до 750 градусов. Но если ударить кочергой, то может треснуть. Через стекло вы любуетесь огнем, следите за прогоранием дров и подкладкой новых. В этой печи использовано прямое остекление. Подача воздуха на горение Воздуха на горение приходит по каналу прямо с улицы или подвала в топочную камеру печи. Количество кислорода в помещении не уменьшается, не падает давление в помещении. Нет обратной тяги и печь не дымит. Окна зимой можно всегда держать закрытыми, не создавая сквозняков для маленьких деток. Размеры Печь камин имеет следующие размеры: высота: 735 мм, ширина: 545 мм, глубина: 370 мм.
Дополнительные опции к камину, приобретаются отдельно :
Характеристики




