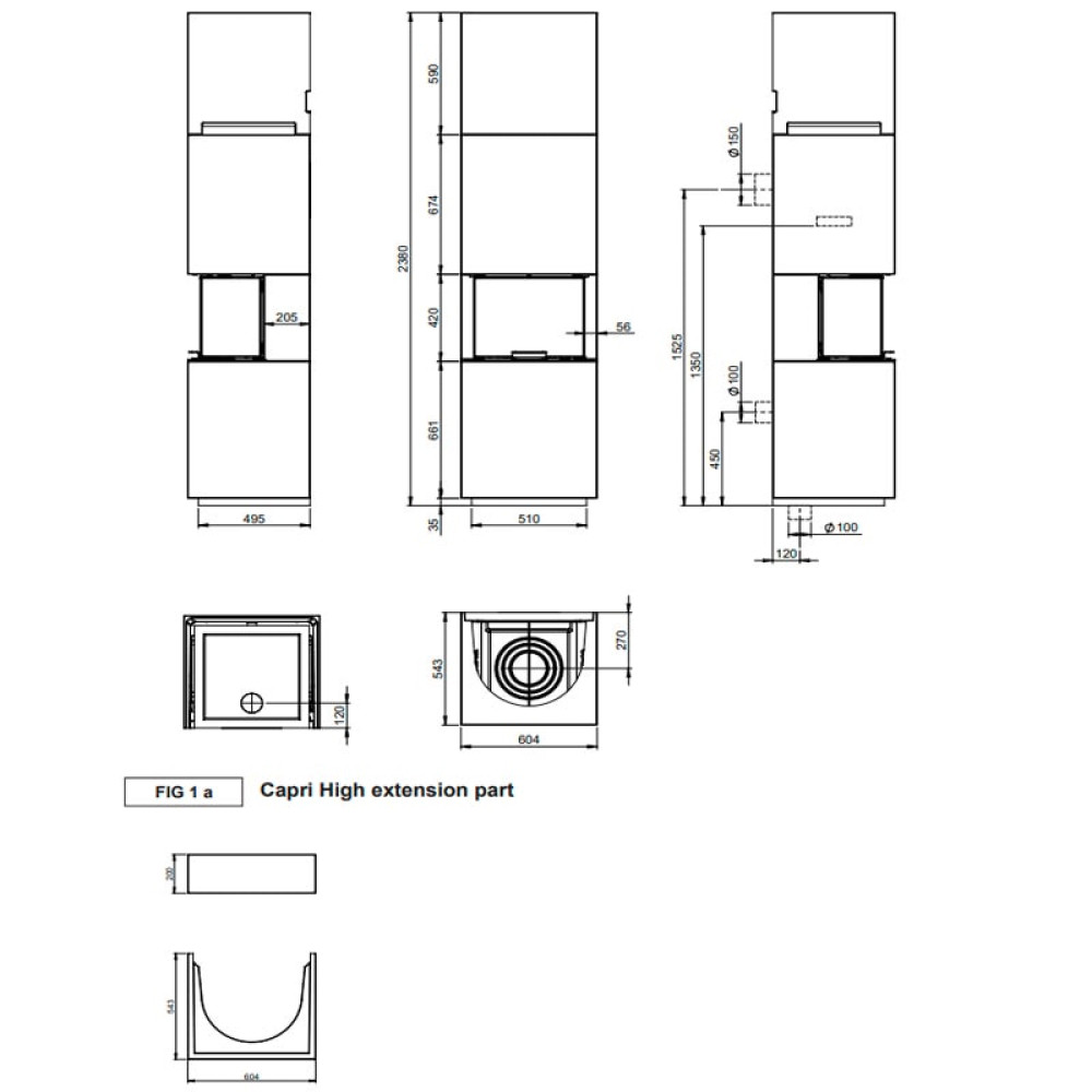
Печь-камин Nordpeis Capri высокая с топкой Q-24UL IR
Камин Capri, от Норвежского производителя Nordpeis, предназначен для небольшой комнаты загородного дома или квартиры, состоит из топки и готовой облицовки из облегченного термобетона Shape Stone Light, которую можно покрасить или облицевать. Топка Q-24UL, с П-образным стеклом, дает большую обзорность огня, а стекло остается чистым, благодаря современной системе «Чистое стекло». Вертикальный, плавный подъем дверцы, с «холодной» ручкой, обеспечивает легкую загрузку дров. Внутри топка футерована белоснежной керамикой Thermotte, которая при горении, не меняет свой цвет. Подробная инструкция, по сборке камина, поможет монтажной бригаде быстро и качественно установить и подключить к дымоходу каминокомплект Capri. Гарантия производителя 5 лет.
Дополнительные опции к камину, приобретаются отдельно :
Характеристики




