Кассетный фанкойл 2-х трубной версии модели General Climate (Дженерал Климат) GCKA-1600Ri используются для быстрого нагревания и охлаждения воздуха в административных и промышленных помещениях. Прибор укомплектован интуитивно удобным пультом управления, поэтому безопасен и прост в эксплуатации. Оборудование выполнено в современном промышленном дизайне и быстро монтируется.
Особенности фанкойлов рассматриваемой серии от торговой марки General Climate:
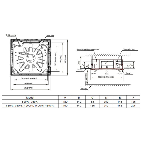
Комплектация:
Двухтрубные кассетные фанкойлы General Climate выполнены в компактных размерах и современном промышленном дизайне, но при этом отличаются высокой мощностью и тонностью выдаваемых температур. Приборы подходят для монтажа в просторных административных зданиях и промышленных помещениях. Агрегаты успешно обогревают или охлаждают воздух, поэтому подходят для круглогодичной эксплуатации.
Характеристики




